Tribeca Studio Gut Renovation
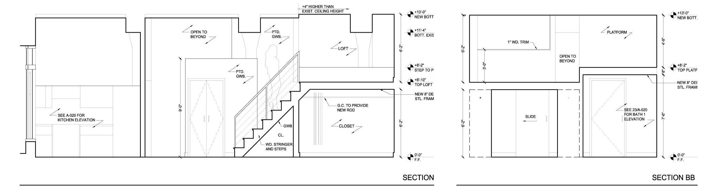
This northern Tribeca corner loft features 13 foot ceilings and unique existing details like wood beam ceilings, full-height arch windows, and exposed brick walls. This full gut renovation transformed the loft into a proper one-bedroom apartment with two full baths.

Tribeca, New York City
Situated on a cobblestone street in Tribeca and originally built as a warehouse in 1885, this building was then converted to co-ops in 1915.





SCHEME A

SCHEME B

SCHEME C







